Promolodost’ Hotel

Project Main Image
Project Details

Luxurious residential complex designed for comfort and sustainability, nestled by the riverside.

Client
PLG Group
Location
St. Petersburg, Russia
Value
$ 67,000,000 USD
Size
57,868 m²
Time
30 Months
Category
Hospitality & Mixed-Use
Status
Successfully Completed
Contact us
Contact us
Arrow

Project Overview

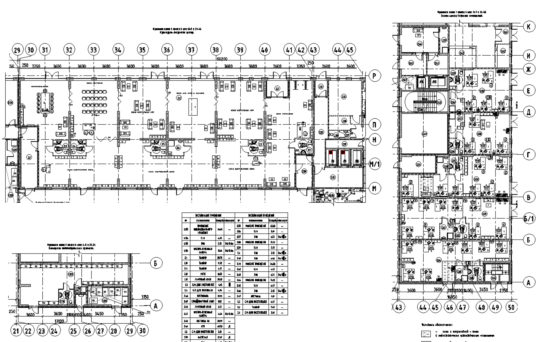
The Promolodost’ Hotel Complex is a large-scale hospitality development in St. Petersburg, featuring 2,072 hotel rooms, a 24-floor tower (75 meters tall), integrated sports complex, and dedicated parking facilities. The project was designed to serve as a modern hospitality hub with advanced infrastructure and guest services.

Frigate provided full-package design management services, coordinating architectural, structural, and engineering disciplines. The team worked closely with investors, consultants, and contractors to ensure timely delivery and compliance with all safety and quality standards.

What we’ve done

  • Delivered comprehensive design management for the entire hotel complex.
  • Coordinated between architectural, engineering, and investor teams.
  • Oversaw integration of hotel, sports, and parking facilities into one development.
  • Ensured adherence to international hospitality and safety standards.
  • Applied advanced design tools for efficient project planning and execution.
Contact us
Contact us
Arrow